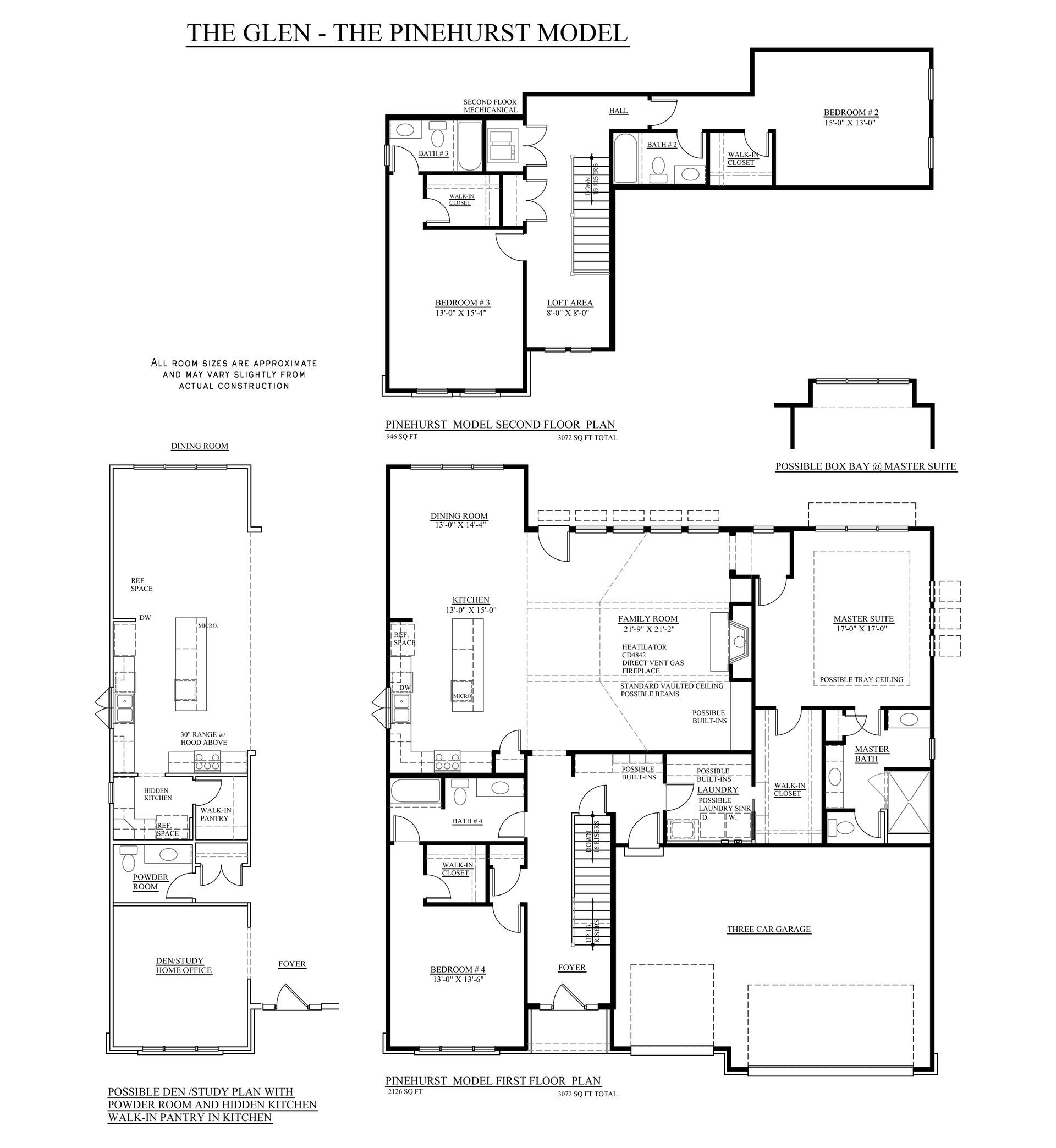
The Pinehurst
3,072 Square Feet • 1-1/2 Story • Starting at $1,176,900
Timeless Design & Thoughtful Living at The Glen at Kehrs Mill
The Pinehurst is a beautifully crafted 1½-story home that offers the perfect balance of elegance, comfort, and everyday functionality. With 3,072 square feet of luxury living space, this floor plan is designed to feel welcoming from the moment you step inside—ideal for both quiet moments at home and memorable gatherings with family and friends.
The main level showcases an open and airy layout anchored by a spacious family room, creating a natural gathering place that flows seamlessly into the kitchen and dining areas. Thoughtful design elements and upscale finishes elevate the space, while abundant natural light adds warmth throughout the home. The private owner’s suite on the main floor offers a peaceful retreat, complete with a spa-inspired bath and generous closet space.
Upstairs, additional bedrooms and baths provide comfort and privacy. With 4 bedrooms and 4 full baths, the Pinehurst effortlessly accommodates families and guests.
From its inviting curb appeal to its smart, livable layout, the Pinehurst delivers refined living with the craftsmanship and trusted quality you expect in a
Hardesty home.
This is a home designed to grow with you—and welcome you home every day.
(See traditional floorplan with dimensions directly below the artist's rendering)



Exceptional
Included Features
Elegantly appointed Interiors
- Engineered Hardwood Flooring in Foyer, Dining Room, Great Room, Kitchen and Breakfast Room (per plan)
- Ceramic Tile Flooring in Laundry Room and All Baths
- $5,000 Light Fixture Allowance (including recessed cans)
- 42” Direct Vent Gas Fireplace with Wood Mantle and
- Marble Surround and Hearth
- 9 ft. High Ceilings – 1st Floor, Minimum
- Vaulted Ceilings (per plan)
- 5-1/4” Base Moldings
- 3-1/4” Door Casing throughout
- Custom Crafted Oversized Stair Parts
- Box Newels with Iron Balusters (yellow pine)
Convenience & Quality
- Technology Package – includes video doorbell, touchscreen panel, integrated security system, and wireless wi-fi network
- 8’-10” High Tall Pour Reinforced Concrete
Exterior Appointments
- Exposed Aggregate Concrete Front Porch,
- Private Walk, and Driveway (up to city walk)
- 3 Car Garages – 8’ High Garage Doors
- Insulated Carriage Style Garage Doors with Glass Inserts
- Garage Door Opener with Exterior Keypad
- 30-Year Architectural Grade Roof Shingles with Full Felt
Designer Kitchen / Master Suite & Bath Appointments:
- 42" Tall Wall Cabinetry
- Dovetail Drawers with soft close
- 3cm Granite Countertops at Kitchen in Choice of Colors with 6 Standard Edge Profiles to choose from
- Appliance Allowance of $8,500.00
- Granite with white under-mount bowl or Cultured Marble Vanity Tops in all Baths
Safe & Efficient Living | Sod & Irrigation
- Lennox 93% Hi-Efficiency Gas Forced Air furnace with Electronic Ignition
- 14-SEER Air Conditioning
- Integrated Security System
- Integrated Doorbell Camera and Smart Garage Door Opener that Connects to Your Smartphone
- Individual Lawn Sprinkler System
- Fully Sodded Home Sites
More Information
Contact Linda McCarthy, our sales manager, at 314-503-6097 or via email at linda@hardestyhomes.com to secure your homesite today!
